Let's Take A Look
Schedule a showing now!
Dripping Springs, TX 78620
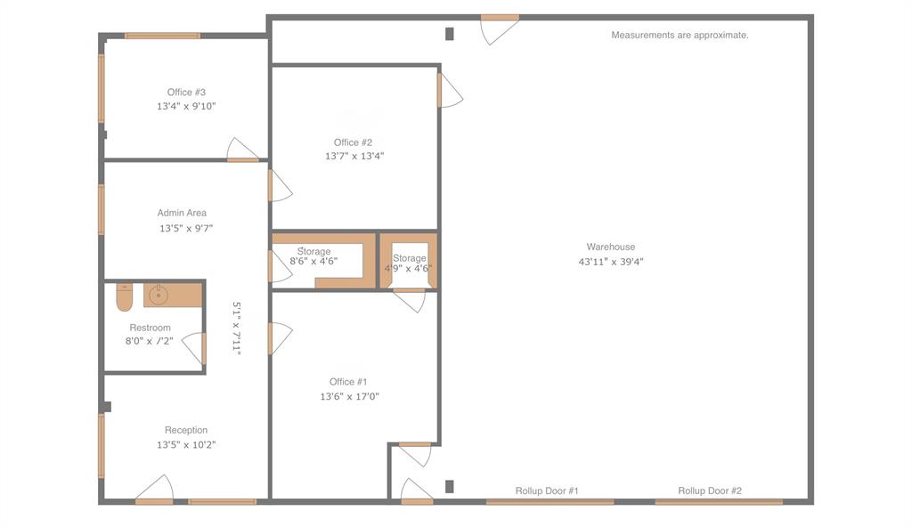
Great office/warehouse totaling approx. 2424 sf with roughly a fifty-fifty split of office and warehouse. Freshly painted office area includes reception, 3 hard walled offices, open office area and restroom. Warehouse has two bays each with a roll up door. Great monument signage that is highly visible on Fitzhugh is available. ***Optional lease of hard-to-find fenced yard -- $500/month extra*** Super location with easy access to Dripping Springs or Austin/US 290. This area has exploded with great area amenities such as Fitzhugh Brewery, Beerberg Brewing, Route 12 Restaurant, Thyme & Dough, Jester King, Abby Rd Bakery and numerous distilleries. Base rate is $15/sf/year plus estimated 2023 NNNs of $3.99/sf/year.
Listed by Keller Williams - Lake Travis
| MLS ID | ACT6503483 | |
| Status | Active | |
| Days Active | 1094 | |
| Est. Tax | N/A | |
| Lot Size | 0 | |
| Year Built | 2004 | |
| Total Bedrooms | 0 | |
| 1st Floor Bedrooms | ||
| Full Baths | ||
| Half Baths | ||
| Square Feet | 0 | |
| Price Per SqFt | N/A | |
| Garage Spaces | ||
| Fireplace(s) | ||
| Fireplace Info | ||
| Flooring | Concrete | |
| Stories | ||
| Pool | No | |
| Courtesy of | Keller Williams - Lake Travis (512) 263-9090 | |
| Subdivision | Silver Creek Business Park | |
| City | Dripping Springs | |
| County | Hays | |
| HOA | ||
| HOA Fee | $ / | |
| Water Front | No | |
| Roof | ||
| Construction | Metal Siding, Stone Veneer | |
| Foundation | ||
| Fencing | ||
| Elementary School | |
| Middle School | |
| High School |
| Appliances | ||
| Heating | Electric | |
| Cooling | Electric | |
| Exterior Features | ||
| Lot Features | ||
| Community Features | ||
| Patio Features | ||
| Structures | ||
| Interior Features | ||
| Courtesy of | Keller Williams - Lake Travis(512) 263-9090 | |
| Fencing Features | ||
| Parking Features | On Site | |